Ref.: 68043 fotos

Mais fotos


Casa à Venda ainda na planta com 2 Quartos e Suíte no Bairro Alto do Sumaré.
R$235.000,00 / VENDACasa à Venda ainda na planta com 2 Quartos e Suíte no Bairro Alto do Sumaré.
R$235.000,00Venda
2, sendo 1 Suíte
1 Vaga
70 m²
Área Construída
Janeiro 2026
Previsão de Entrega
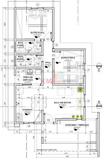
Cômodos
2 Dormitórios, sendo 1 suíte1 Banheiro1 Vaga1 Cozinha1 Sala de jantar1 Sala de estar1 Área de serviço
Proximidades
FarmáciaHospitalIgrejaPadariaPosto de GasolinaPraçaSupermercado
Descrição do imóvel
CÓDIGO: 6804 - Conheça esta charmosa casa de 200 m² de área total, localizada no tranquilo bairro Alto do Sumaré, em Mossoró. Ideal para quem busca um ambiente acolhedor e funcional para a família.
Com 70 m² de área construída, a residência conta com 2 quartos, sendo 1 suíte, uma sala de estar ampla para dois ambientes e uma cozinha pensada para a praticidade do dia a dia. A área de serviço, garagem e um quintal espaçoso complementam a propriedade, oferecendo conforto e lazer.
Valor: R$ 235.000,00, escritura Publica e o melhor Aceita Financiamento!
Prazo para entrega: Janeiro 2026!
Agende uma visita com a KM Imóveis e realize o sonho da casa própria.
CRECI 5646 J
Localização
Rua:Recife. - Alto do Sumaré - Mossoró/RN | Complemento: LOTEAMENTO JOÃO MENDES GREGÓRIO. - 59633-500
Ficha do imóvel
PerfilResidencial
SituaçãoNa planta
EscrituradoSim
AverbadoSim
Possui mobília?Sem mobília
Previsão de entregaJaneiro 2026
TerrenoPlano
Aceita FinanciamentoSim
Área Privativa70m²
Área Construída70m²
Terreno Área Total200m²
Terreno Frente10m
Terreno Fundo10m
Terreno Direita20m
Terreno Esquerda20m
Olá me chamo Kamila e estou disponível nesse momento para esclarecer dúvidas no Whatsapp. Independente do horário é só chamar!
1




